Home From Home
Terrace House Study
Home From Home – Maggie’s Centre Competition
Shortlisted for the Maggie’s architecture competition, this concept explores the idea of ‘home’ as a comforting and familiar space for those affected by cancer. The design draws from traditional domestic architecture, using pitched roofs, warm materials, and enclosed courtyards to create a non-institutional, healing environment.
This design reinforces the idea that architecture can offer emotional support, dignity, and comfort through spatial design.
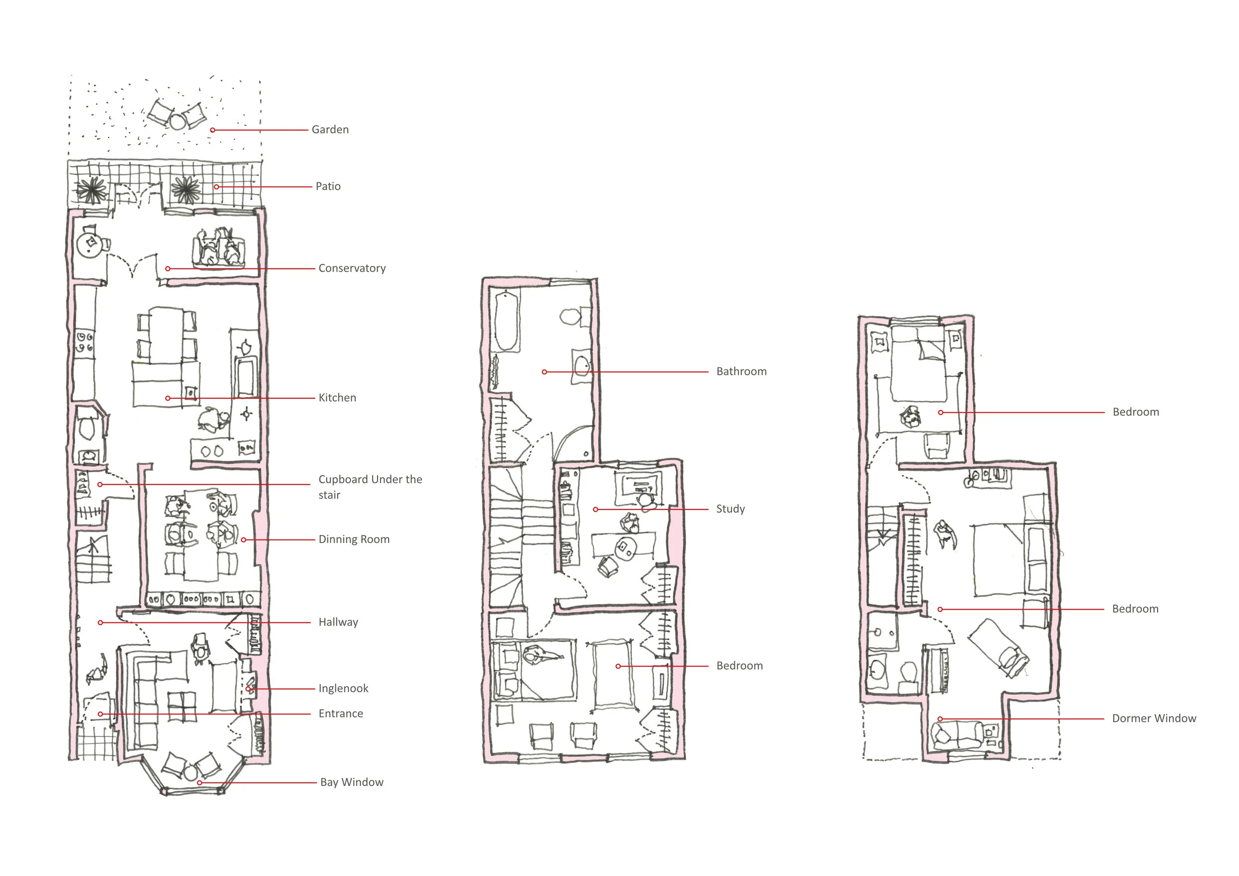
Proposed Plan
Internal views
Kitchen Perspective
Library Perspective
